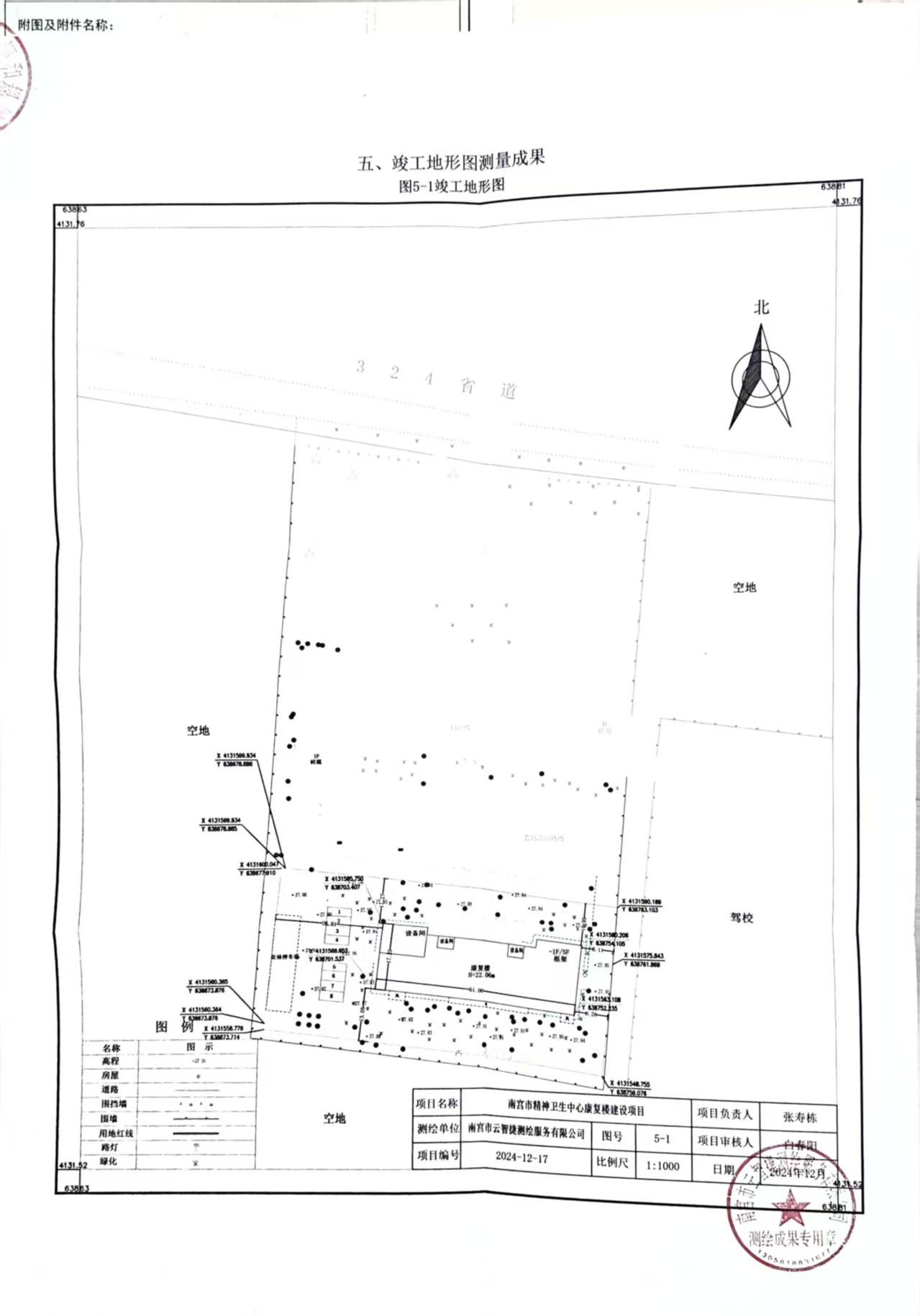
南宫市精神卫生中心康复楼建设项目规划核实和土地核验证明

体裁分类:事后公开     主题分类:城乡建设、环境保护           发布时间: 2025-09-29      发布机构:自然资源和规划局      浏览次数:26     字体:[  ]

572eea5ae37cd67167f90cfa80e586d1.jpg

3fbb0913f4e9cdec1958129542e17c2c.jpg