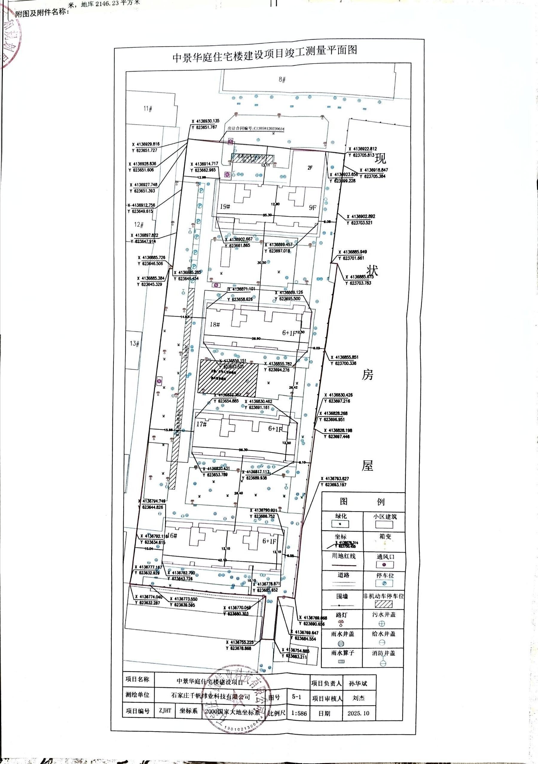
中景华庭住宅楼项目规划核实和土地核验证明

体裁分类:事后公开     主题分类:城乡建设、环境保护           发布时间: 2026-03-17      发布机构:自然资源和规划局      浏览次数:37     字体:[  ]

5af22394ab9d8a03f52e518767ca0d21_compress.jpg

1b7b18092c306710e777f5943eebfc31_compress.jpg